不動産売買・賃貸・仲介・管理全般 | 佐藤不動産

- 物件詳細 -

HOME > 買いたい > 物件詳細

中古住宅

日当たり良好・収納豊富な4SLDK、カウンターキッチン仕様☆便利な食洗機に水回り設備は新品交換済、駐車3台可能★近隣には商業施設もあり生活にも便利、眺望も良好♪

所在地
松本市寿台7丁目

価格 2680 万円

土地面積公簿  339.82㎡ (102.79坪)

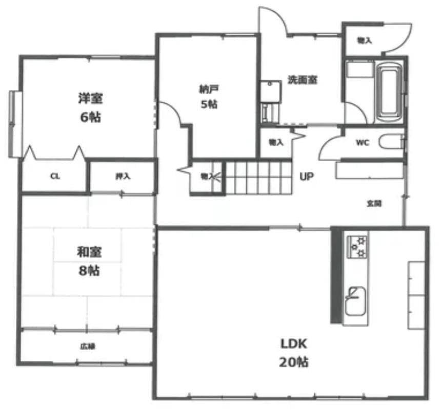
間取り4SLDK

建物面積142.39㎡(43.07坪)

担当者より

現在リフォーム工事中

現在リフォーム工事中

現在リフォーム工事中

現在リフォーム工事中

現在リフォーム工事中

現在リフォーム工事中

1F

1F

2F

2F

現在リフォーム工事中

現在リフォーム工事中

現在リフォーム工事中

現在リフォーム工事中

現在リフォーム工事中

現在リフォーム工事中

現在リフォーム工事中

現在リフォーム工事中

現在リフォーム工事中

現在リフォーム工事中

現在リフォーム工事中

現在リフォーム工事中

現在リフォーム工事中

現在リフォーム工事中

現在リフォーム工事中

現在リフォーム工事中

現在リフォーム工事中

現在リフォーム工事中

現在リフォーム工事中

現在リフォーム工事中

/

所在地 松本市寿台7丁目 建物名
価格 2680万円 消費税内税額
土地面積 公簿  339.82㎡ (102.79坪) 建物面積 142.39㎡(43.07坪)
間取 4SLDK 構造 木造
詳細間取 LDK20帖、洋室10帖・9帖・6帖、和室8帖 その他一時金
総階数 2階  完成年月 1974年3月
湯権 下水道 公共下水道
通学区 松本市立明善小学校 (600m)
松本市立明善中学校 (800m)
引渡/入居日 即可能
手数料 私道負担面積
接道状況 方角:南 公私区分:公道 
設備 システムキッチン・カウンターキッチン・食器洗浄乾燥機・TVモニタ付きインターホン・インターホン・ディンプルキー・温水洗浄便座・バス1坪以上・オートバス・追焚機能・暖房便座・BT別室・バルコニー・庭・エアコン・ウォークインクローゼット・日当り良好・閑静住宅街・リフォーム済み・上水道・給湯・洗髪洗面化粧台・照明器具付き・電気・プロパンガス・下水道・駐車場3台分
駐車場 有  3台可 
施工会社
交通 電車: 篠ノ井線村井駅 徒歩33分 
備考 住宅ローン返済例:2680万円借入の場合(諸費用自己資金)
35年ローン 金利1.2% 全期間変動金利 ボーナス払い無し

月々:78,176円
管理番号 取引態様 媒介
最終更新日 2026-01-18

マップ

※物件位置が表示されていない場合もあります。 正確な位置は取り扱い会社へお問い合わせください

物件のお問い合わせ

物件情報 物件番号:449195 / 中古住宅 / 松本市寿台7丁目 / 価格:2680万円
お名前 必須
電話番号 必須
FAX
※FAXで資料送付をご希望の方は、必ず入力してください。
メールアドレス 必須
資料送付先 郵便番号 
住所 
※郵送で資料送付をご希望の方は、必ず入力してください。
お問い合わせ種別 資料をメールで送ってほしい
資料をFAXで送ってほしい
資料を郵送してほしい
現地を見てみたい
電話で聞きたい
ご質問内容
ご希望の条件、ご予算、その他質問事項があればご記入ください

※お使いのメールサービス、メールソフト、ウィルス対策ソフト等の設定により「迷惑メール」と認識され、メールが届かない場合があります。(特にgmailやYahoo!メールなどのフリーメールをお使いの方)
その場合は「迷惑メールフォルダー」等をご確認いただくかお使いのサービス、ソフトウェアの設定をご確認ください。

page_top